Skip To Content

1250 W Mockingbird Lane , #310

Dallas, TX 75247
  • $6,445
  • STATUS: Active
  • ON SITE: 697 Days
  • MLS #: 20514278
UPDATED: 36 min ago
$6,445
  • 0
    BEDS
  • 3.06
    ACRES
  • 0
    BATHS
  • 0
    1/2 BATHS
Type:
Commercial-Lease
Built:
1978
County:
Area:

School Ratings & Info

Offered by Kolby Dickerson of TXRE Properties: .

Description

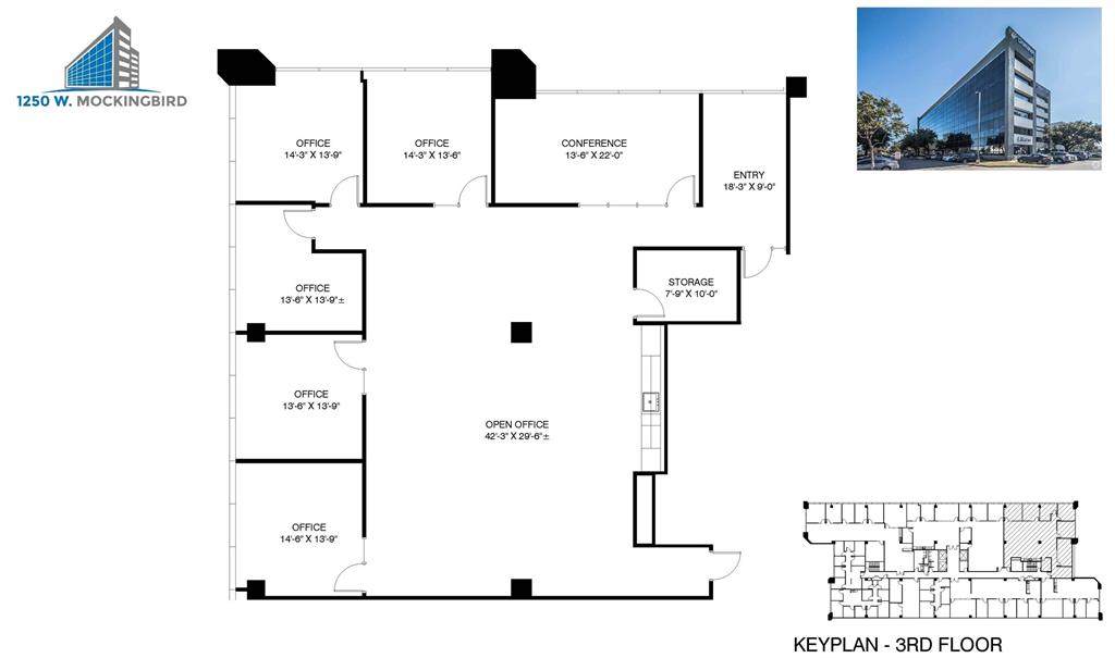
Suite 310 is currently being built out for a Spec Suite. This is a Class A, six-story building that fronts Mockingbird Lane. In the past few years, the building went under a massive renovation of the 1st, 2nd, 3rd, and 4th-floor common areas, lobbies, and restrooms, installed a new roof and a brand new HVAC system, giving tenants six degrees of temperature control. 1250 Mockingbird Lane is the only building in the submarket to be completely renovated both aesthetically and with capital improvements (roof, HVAC). The building also has a Murphy's Deli on-site, a full staff with onsite property management and engineering, and the best parking ratio in the area. Located on the corner of I-35 (Stemmons Freeway) and Mockingbird Lane, 1250 Mockingbird Lane gives its clients the ability to pull talent from anywhere in DFW. The building is also located 2 miles from Dallas Love Field and is on multiple public transportation lines.



© 2025 North Texas Real Estate Information Systems. All rights reserved. IDX information is provided exclusively for consumers' personal, non-commercial use and may not be used for any purpose other than to identify prospective properties consumers may be interested in purchasing. Information is deemed reliable but is not guaranteed accurate by the MLS or Berkshire Hathaway HomeServices PenFed Realty Texas. The data relating to real estate for sale or lease on this web site comes in part from NTREIS. Real estate listings held by brokerage firms other than Berkshire Hathaway HomeServices PenFed Realty Texas are marked with the NTREIS logo or an abbreviated logo and detailed information about them includes the name of the listing broker. Data last updated 2025-12-14T23:41:52.643.
www.rhodesteamtexas.com/homes/146708926
Print Image

1250 W Mockingbird Lane , #310 Dallas, TX 75247

  • Price: $6,445
  • Status: Active
  • On Site: 697 Days
  • Updated: 36 min ago
  • MLS #: 20514278
0
Beds
0
Baths
0
½ Baths
3.06
Acres
1978
Built
Neighborhood:
West Love Field Submarket
County:
Dallas
Area:
Dallas
Property Description
Suite 310 is currently being built out for a Spec Suite. This is a Class A, six-story building that fronts Mockingbird Lane. In the past few years, the building went under a massive renovation of the 1st, 2nd, 3rd, and 4th-floor common areas, lobbies, and restrooms, installed a new roof and a brand new HVAC system, giving tenants six degrees of temperature control. 1250 Mockingbird Lane is the only building in the submarket to be completely renovated both aesthetically and with capital improvements (roof, HVAC). The building also has a Murphy's Deli on-site, a full staff with onsite property management and engineering, and the best parking ratio in the area. Located on the corner of I-35 (Stemmons Freeway) and Mockingbird Lane, 1250 Mockingbird Lane gives its clients the ability to pull talent from anywhere in DFW. The building is also located 2 miles from Dallas Love Field and is on multiple public transportation lines.
Exterior Features

Construction Concrete Foundation Concrete Perimeter Parking Or Garage Additional ParkingOpenOutside Roof Other Unit Floor Location 3

Interior Features

Ceiling Height 8 to10 Feet Cooling Central Air Flooring CarpetCeramic Tile Handicap YN No Heating Central Sq Ft Gross 3555

Property Features

Building Area Source Other Building Area Total 125924.00 Building Use MedicalOffice Construction Status Preowned Gross Annual Expenses 0.00 Gross Annual Income 0.00 Municipal Utility District No Net Operation Income 0 Possession Negotiable Property Type Office Tenant Pays Electricity Transaction Includes Other Utilities City SewerCity Water Will Subdivide Yes Zoning Office

North Texas Real Estate Information Systems MLS logo Listing information © 2025 North Texas Real Estate Information System.


© 2025 North Texas Real Estate Information Systems. All rights reserved. IDX information is provided exclusively for consumers' personal, non-commercial use and may not be used for any purpose other than to identify prospective properties consumers may be interested in purchasing. Information is deemed reliable but is not guaranteed accurate by the MLS or Berkshire Hathaway HomeServices PenFed Realty Texas. The data relating to real estate for sale or lease on this web site comes in part from NTREIS. Real estate listings held by brokerage firms other than Berkshire Hathaway HomeServices PenFed Realty Texas are marked with the NTREIS logo or an abbreviated logo and detailed information about them includes the name of the listing broker. Data last updated 2025-12-14T23:41:52.643.
 
https://bt-photos.global.ssl.fastly.net/ntreis/orig_boomver_1_20514278-2.jpg https://bt-photos.global.ssl.fastly.net/ntreis/orig_boomver_1_20514278-2.jpg https://bt-photos.global.ssl.fastly.net/ntreis/orig_boomver_1_20514278-2.jpg
Logo
Berkshire Hathaway HomeServices PenFed Realty Texas
3624 Long Prairie Road, Suite 100
Flower Mound TX, 75022
Offered by Kolby Dickerson of TXRE Properties: .