Skip To Content

2024 Jasper Meadows

Mesquite, TX 75181
  • $427,825
  • STATUS: Active
  • ON SITE: 101 Days
  • MLS #: 21022362
Open House
UPDATED: 37 min ago
$427,825
  • 4
    BEDS
  • 0.15
    ACRES
  • 2
    BATHS
  • 1
    1/2 BATHS
  • 2,397
    SQFT
  • $178
    $/SQFT
Neighborhood:
Type:
Single-Family Home
Built:
2025
County:
Area:

School Information

Elementary School:
High School:
School District:
Offered by Ben Caballero of HomesUSA.com: 888-872-6006.

Description

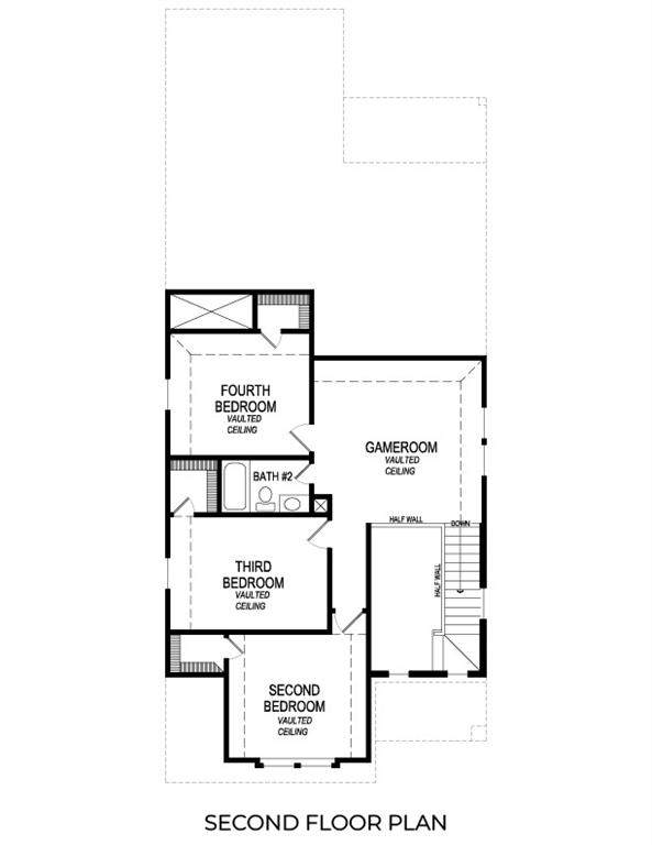
MLS# 21022362 - Built by First Texas Homes - Ready Now! ~ The Jackson Select F offers 4 bedrooms, 2.5 bathrooms, and 2,397 sqft of thoughtfully designed living space that adapts to your lifestyle. From everyday routines to special moments, this two-story home is built to support how you live"with comfort, functionality, and style in mind. Step into a stunning foyer that sets the tone for the open and inviting layout. The gourmet kitchen features granite countertops, built-in cooktop, and ample cabinetry"designed for the chef in everyone. A dedicated study niche offers a quiet place to work or focus, while the spacious living areas flow seamlessly for entertaining and everyday enjoyment. The primary bedroom showcases upgraded flooring, added lighting, and a striking box ceiling for elevated design. The ensuite bath includes a separate shower with a step-in mud pan and sleek glass enclosure. Upstairs, an oversized game room provides a flexible space for recreation, relaxation, or personalization to fit your needs.

Monthly Payment Calculator



© 2025 North Texas Real Estate Information Systems. All rights reserved. IDX information is provided exclusively for consumers' personal, non-commercial use and may not be used for any purpose other than to identify prospective properties consumers may be interested in purchasing. Information is deemed reliable but is not guaranteed accurate by the MLS or Berkshire Hathaway HomeServices PenFed Realty Texas. The data relating to real estate for sale or lease on this web site comes in part from NTREIS. Real estate listings held by brokerage firms other than Berkshire Hathaway HomeServices PenFed Realty Texas are marked with the NTREIS logo or an abbreviated logo and detailed information about them includes the name of the listing broker. Data last updated 2025-11-14T12:47:07.317.
www.rhodesteamtexas.com/homes/166591054
Print Image

2024 Jasper Meadows Mesquite, TX 75181

  • Price: $427,825
  • Status: Active
  • On Site: 101 Days
  • Updated: 37 min ago
  • MLS #: 21022362
4
Beds
2
Baths
1
½ Baths
0.15
Acres
2,397
SQFT
$178
$/SQFT
2025
Built
Neighborhood:
Solterra
County:
Dallas
Area:
Mesquite
Elementary School:
Gentry
High School:
Horn
School District:
Mesquite ISD
Property Description
MLS# 21022362 - Built by First Texas Homes - Ready Now! ~ The Jackson Select F offers 4 bedrooms, 2.5 bathrooms, and 2,397 sqft of thoughtfully designed living space that adapts to your lifestyle. From everyday routines to special moments, this two-story home is built to support how you live"with comfort, functionality, and style in mind. Step into a stunning foyer that sets the tone for the open and inviting layout. The gourmet kitchen features granite countertops, built-in cooktop, and ample cabinetry"designed for the chef in everyone. A dedicated study niche offers a quiet place to work or focus, while the spacious living areas flow seamlessly for entertaining and everyday enjoyment. The primary bedroom showcases upgraded flooring, added lighting, and a striking box ceiling for elevated design. The ensuite bath includes a separate shower with a step-in mud pan and sleek glass enclosure. Upstairs, an oversized game room provides a flexible space for recreation, relaxation, or personalization to fit your needs.
Exterior Features

Carport Spaces 0 Construction BrickFiber Cement Covered Spaces 2 Exterior Features Covered Patio/PorchRain Gutters Fencing Back YardFencedWood Foundation Slab Housing Type Single Detached Parking Or Garage Garage Door OpenerGarage Double DoorGarage Faces FrontGarage Single DoorOversized Patio And Porch Features Covered Pool On Property No Roof Composition Style CraftsmanTraditionalTudor Waterfront YN No

Interior Features

Appliances DishwasherDisposalElectric OvenGas CooktopMicrowaveTankless Water HeaterVented Exhaust Fan Attached Garage Yes Basement No Cooling Central AirElectric Dining Areas 1 Fireplace Features Family Room Fireplaces 1 Flooring CarpetLuxury Vinyl PlankTileWood Garage Yes Garage Length 20 Garage Width 20 Handicap YN No Heating CentralNatural Gas Interior Features Cable TV AvailableDecorative LightingEat-in KitchenGranite CountersHigh Speed Internet AvailableKitchen IslandOpen FloorplanPantrySmart Home SystemSound System WiringVaulted Ceiling(s)Walk-In Closet(s) Laundry Features Electric Dryer HookupUtility RoomFull Size W/D AreaWasher Hookup Living Areas 2 Rooms Bedroom (2 Level) Dining Room (1 Level) Bedroom (2 Level) Game Room (2 Level) Bedroom (2 Level) Living Room (1 Level) Bedroom-Primary (1 Level)

Property Features

Alarm Or Security Type Carbon Monoxide Detector(s)PrewiredSmoke Detector(s)Wireless Common Features Club HouseCommunity PoolFishingFitness CenterGreenbeltJogging Path/Bike PathLakeParkPlaygroundSidewalks Construction Status New Construction - Complete Green Certification 12 inch+ Attic InsulationConstructionHVACLightingLow Flow CommodeRain / Freeze SensorsThermostatWindows HOA Mandatory Hoa Billing Freq Semi-Annual Hoa Dues 1250 Hoa Includes Full Use of FacilitiesMaintenance GroundsManagement Fees HOAManagement Company CCMC HOAManagement Company Phone 888-257-1388 Levels Two Municipal Utility District No Planned Development Solterra Possession Closing/Funding Property Attached No Property Type Single Family Residence Senior Community No Utilities City SewerCity WaterCurbsIndividual Gas MeterIndividual Water MeterSidewalkUnderground Utilities Will Subdivide No

North Texas Real Estate Information Systems MLS logo Listing information © 2025 North Texas Real Estate Information System.


© 2025 North Texas Real Estate Information Systems. All rights reserved. IDX information is provided exclusively for consumers' personal, non-commercial use and may not be used for any purpose other than to identify prospective properties consumers may be interested in purchasing. Information is deemed reliable but is not guaranteed accurate by the MLS or Berkshire Hathaway HomeServices PenFed Realty Texas. The data relating to real estate for sale or lease on this web site comes in part from NTREIS. Real estate listings held by brokerage firms other than Berkshire Hathaway HomeServices PenFed Realty Texas are marked with the NTREIS logo or an abbreviated logo and detailed information about them includes the name of the listing broker. Data last updated 2025-11-14T12:47:07.317.
 
https://bt-photos.global.ssl.fastly.net/ntreis/orig_boomver_3_21022362-2.jpg https://bt-photos.global.ssl.fastly.net/ntreis/orig_boomver_3_21022362-2.jpg https://bt-photos.global.ssl.fastly.net/ntreis/orig_boomver_3_21022362-2.jpg
Logo
Berkshire Hathaway HomeServices PenFed Realty Texas
3624 Long Prairie Road, Suite 100
Flower Mound TX, 75022
Offered by Ben Caballero of HomesUSA.com: 888-872-6006.